
Proyecto de Instalación de Ascensor
Recomendaciones y documentación

Cuando una comunidad de propietarios decide la instalación de un ascensor previamente debe aportar en los servicios técnicos de su municipio un proyecto técnico. Este proyecto deberá estar visado como condición indispensable por el Colegio Oficial de Arquitectos o Arquitectos Técnicos.
El proyecto de ascensor debe atender a dos aspectos claramente diferenciados :
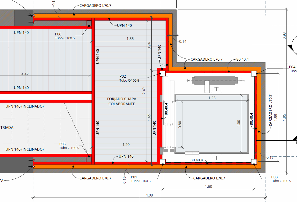
- Descripción arquitectónica de la propuesta: el proyecto de ascensor debe contener de manera gráfica y escrita las condiciones urbanísticas del emplazamiento del nuevo ascensor (implantación en solar, patio, acera…), debe definir justificadamente todos los elementos estructurales que componen la caja que albergará el recorrido de la cabina de ascensor. Es también preceptivo que el proyecto describa las condiciones de accesibilidad resultantes en el edificio tras las obras proyectadas.
- Descripción de la instalación, con las características del grupo tractor, guías, contrapesos, sistemas de seguridad,… Se definirán pormenorizadamente las condiciones de la instalación eléctrica con sus esquemas unifilares.
Cuando le edificio en el que se quiere implantar el nuevo ascensor tiene algún tipo de catalogación o protección histórico artística el proyecto deberá ser firmado por un Arquitecto.
documentación descriptiva
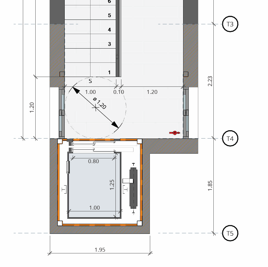
La redacción del proyecto de instalación de un ascensor en un edificio ya construido debe considerar ciertas particularidades, es fundamental definir con exactitud el estado previo a la instalación. La toma de datos, previo a la redacción del proyecto, debe ser exhaustiva. Esto nos permitirá definir posteriormente una solución precisa, acorde a la normativa de accesibilidad DB SUA.
En Acuatro Arquitectos desarrollamos los proyectos con tecnología BIM lo que nos permite trabajar en tres dimensiones y disponer de información detallada y precisa de las alturas y dimensiones de los espacios que componen la geometría de los elementos comunes en todas las plantas del edificio.

Se describirán las instalaciones que se verán afectadas por la instalación. Estas comúnmente son los contadores y acometidas eléctricas, de suministro de agua fría y canalizaciones de gas que discurren por fachada.
Documentación justificativa
Los proyectos de instalación de ascensores deben incluir una memoria y un conjunto de planos que justifiquen la intervención y demuestren su conformidad con la normativa vigente.
En primer lugar, es importante justificar que los proyectos cumplan con la normativa urbanística, es habitual que la instalación del ascensor sobrepase los límites de la propiedad de la comunidad de propietarios. El Plan General de Ordenación Urbana del Ayuntamiento de Madrid permite la ocupación de suelo público en actuaciones encaminadas a la mejora de la accesibilidad en edificios ya construidos, para ello hay que justificar que no es posible proceder de otra manera y que no hay solución posible dentro de los límites de la propiedad. En otros ayuntamientos se especifican otras limitaciones que se deben considerar en la redacción del proyecto.
También deben tenerse en cuenta los aspectos estéticos de la solución de fachada propuesta, ya que muchas ordenanzas municipales exigen el uso de colores y despieces específicos, así como conjuntos homogéneos con condiciones particulares.

El proyecto de instalación de un ascensor debe justificar el cumplimiento del Código Técnico de la Edificación, asegurando que la solución propuesta cumpla con el Documento Básico de Seguridad de utilización y accesibilidad DB SUA y DB SUA2. En este apartado se relacionarán las dimensiones de escaleras y pasillos, cabinas de ascensor y puertas en los recorridos accesibles. También se definirá la altura y características de las barandillas, resbaladicidad de los suelos… En los edificios existentes, en el caso de no se puedan conseguir las dimensiones marcadas en el DB SUA es posible justificadamente adoptar medidas alternativas para conseguir un recorrido accesible con unas condiciones de utilización razonables, estas tolerancias quedan relacionadas en el documento DB SUA2.
Es fundamental justificar el cumplimiento de los requisitos del Documento Básico de Seguridad en caso de Incendio DB SI lo que implica definir el comportamiento de la estructura, cerramientos y acabados en caso de incendio. Debe evaluarse y justificar el cumplimiento de las condiciones de evacuación de manera integral, teniendo en cuenta la altura del edificio, las dimensiones de pasillos, escaleras y rellanos y las medidas de protección contra incendios (señalización, extintores, detección, iluminación…).
En el ámbito del ahorro energético, el código técnico exige una justificación detallada en los cerramientos y huecos (puertas y ventanas) que componen las fachadas en el Documento Básico de Ahorro de Energía DB HE. Es esencial demostrar que la transmitancia térmica no excede los límites normativos, asegurando que el aislamiento proyectado para la reforma garantiza un desempeño adecuado.

El proyecto debe incorporar una justificación completa del cálculo y diseño de la estructura del ascensor, así como de las escaleras y forjados en caso de que estos sean modificados. Los requisitos de este apartado vienen definidos por el Documento Básico de Seguridad Estructural DB SE. Este Documento Básico (DB) tiene por objeto establecer reglas y procedimientos que permiten cumplir las exigencias básicas de seguridad estructural.
otra documentación
El proyecto deberá contener un plan de control de calidad, que supervisará la recepción de todos los productos y materiales utilizados, así como la correcta ejecución de la obra, garantizando los más altos estándares de calidad en cada paso del proceso. Incluirá también de acuerdo a la Loe un manual detallado de uso y mantenimiento, redactado para guiar a los propietarios del edificio en el cuidado adecuado del ascensor y de los elementos afectados por la actuación. Este manual será una herramienta esencial para preservar la integridad y la estética de los elementos constructivos y la instalación del ascensor a largo plazo.
Conclusiones

Un proyecto de instalación de ascensor correctamente redactado es fundamental para ejecutar las obras sin dificultades adicionales, controlando el gasto que suponen y poder obtener y justificar subvenciones y deducciones fiscales. La instalación de ascensor no solo mejora la accesibilidad y funcionalidad del inmueble, sino que también incrementa su valor y confort.
Documento Básico SUA
Seguridad de utilización y
accesibilidad
DA DB-SUA / 2
Adecuación efectiva de las condiciones de accesibilidad en
edificios existentes
@Santisteban
Efectivamente los Ingenieros Industriales son competentes en todo lo concerniente a la maquinaria.
Arquitectos y arquitectos técnicos son competentes, y necesarios, si el proyecto se inscribe en edificios de uso residencial, hotelero, oficinas,… y la actuación supone modificaciones de fachada, estructura o parámetros urbanísticos (ocupación, modificación de patios, apertura o cierre de ventanas,…).
Cabría destacar lo siguiente:
Los Ingenieros Técnicos Industriales son Técnicos Competentes en la elaboración de proyectos de ascensores, gruas y montacargas en general, debiendo extenderse la documentación a Industria para su legalización.